Skip to content

60 Wells Street

East Gosford NSW 2250

  • 2 Bed
  • 1 Bath
  • 1 Toilet
  • 1 Park
Contact agent
Enquire now

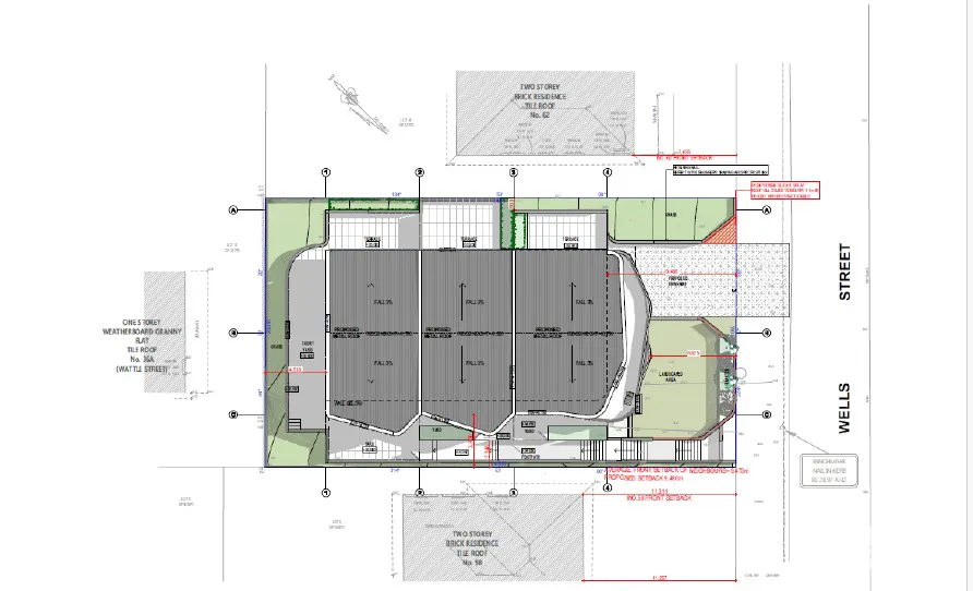
Prime DA Approved Three Townhouses Opportunity or Ideal First Home with Water Views

Offering an outstanding opportunity for owner-occupiers, investors, or developers, this 702sqm parcel of R1 General Residential zoned land is positioned in a highly sought-after location and offers exceptional future potential.
Currently featuring a charming two-bedroom cottage filled with character, the home showcases high ceilings and a welcoming layout, complemented by a generous backyard ideal for outdoor living. Enjoy picturesque water views while considering the many possibilities this property presents.
Development Potential
Zoned R1 General Residential, the property offers scope for future development, with an approved DA for three townhouses, making it an attractive proposition for developers looking to maximise value.
Key Features
• 702sqm of R1 General Residential zoned land
• Approved DA for three townhouses
• Charming two-bedroom cottage with high ceilings
• Character-filled interiors
• Large backyard ideal for outdoor living
• Captivating water views
This is a rare opportunity to secure a versatile property combining immediate liveability with strong development upside in a prime location.

Convenient and fast transactions, we recommend contacting a Mortgage Broker Nancy Dai 0432 408 911 or Nancy@oceanfortunes.com . (24/7 reply)
Disclaimer: The information presented has been furnished from sources we deem to be reliable. We have no reason to doubt its accuracy, however, we cannot guarantee it. All interested parties should rely on their enquiries to determine the accuracy of this information. To view our Privacy Policy, please visit our Elders Real Estate website.

Features

General Features

  • Property Type: House
  • Bedrooms: 2
  • Bathrooms: 1
  • Living Areas: 1

Indoor Features

  • Toilets: 1
  • Built In Wardrobe

Outdoor Features

  • Garage Spaces: 1
  • Courtyard

Other Features

  • Close to Schools
  • Close to Shops
  • Close to Transport

Can I afford 60 Wells Street?

Whether you’re a first-time buyer, looking for your next home, or considering upgrading or downgrading, Elders Finance can unlock the doors to the right finance option for you and get you into the home of your dreams.

Calculators

Elders Real Estate Hornsby

Enquire about 60 Wells Street, East Gosford, NSW, 2250

Property guides and resources

Federal Budget 2026–27: What It Means for Property Owners, Renters and Investors

The 2026–27 Federal Budget introduces a range of changes to Australia’s property…
Read more

Spaces That Bring the Family Together

There’s something special about the spaces where life naturally gathers. The kitchen…
Read more

Simple Ways to Refresh Your Home for the Cooler Months

There’s something about this time of year that invites a reset. After…
Read more